3564 Alexandria Ave, Myrtle Beach, SC 29577
Toggle Navigation
Images
Floor Plans
3D Tour
Map
3564 Alexandria Ave
Myrtle Beach, SC 29577
Scroll to Content
Images
Slideshow
Photo Grid
Hide
Previous
Next
Show more
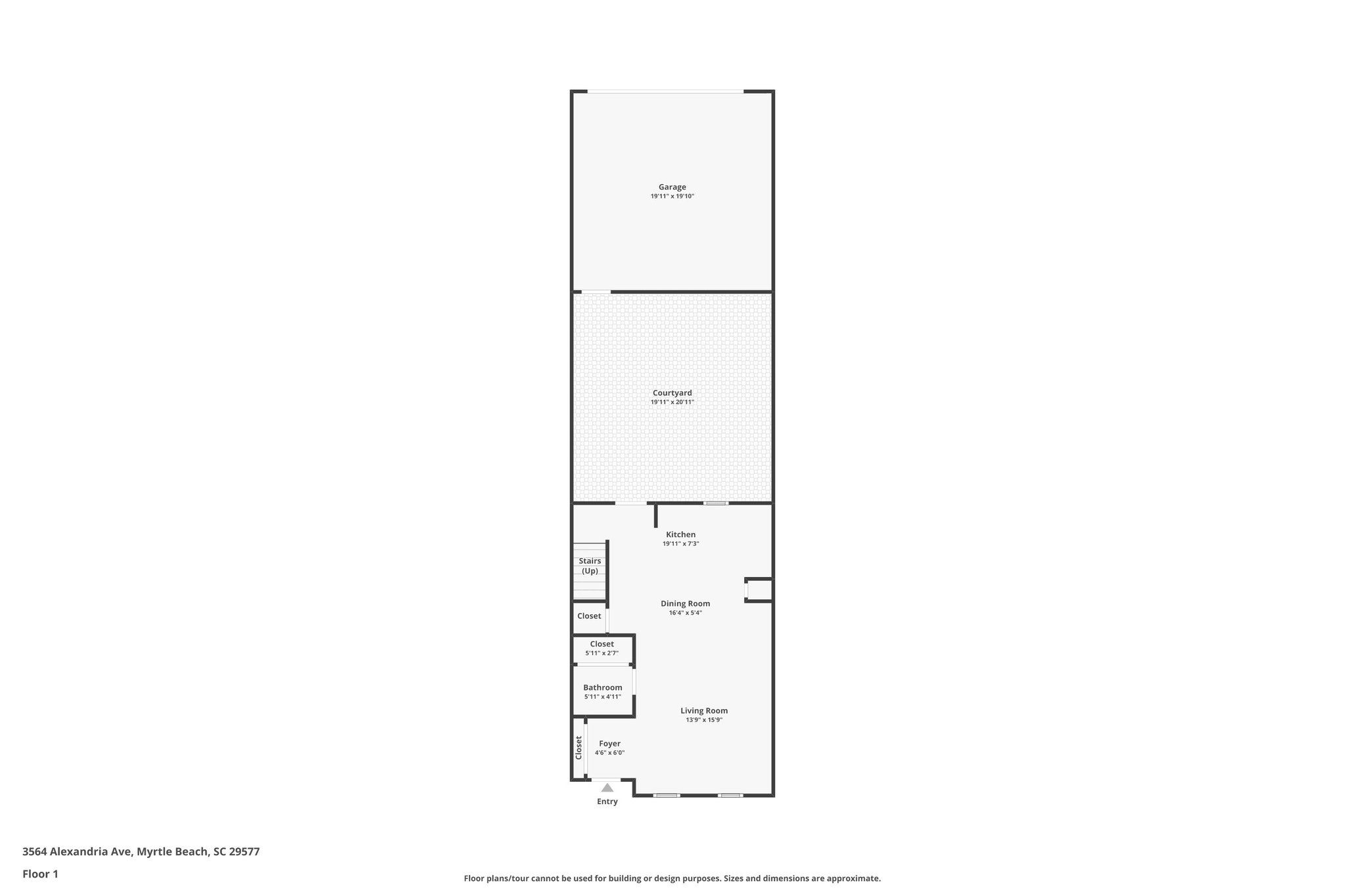
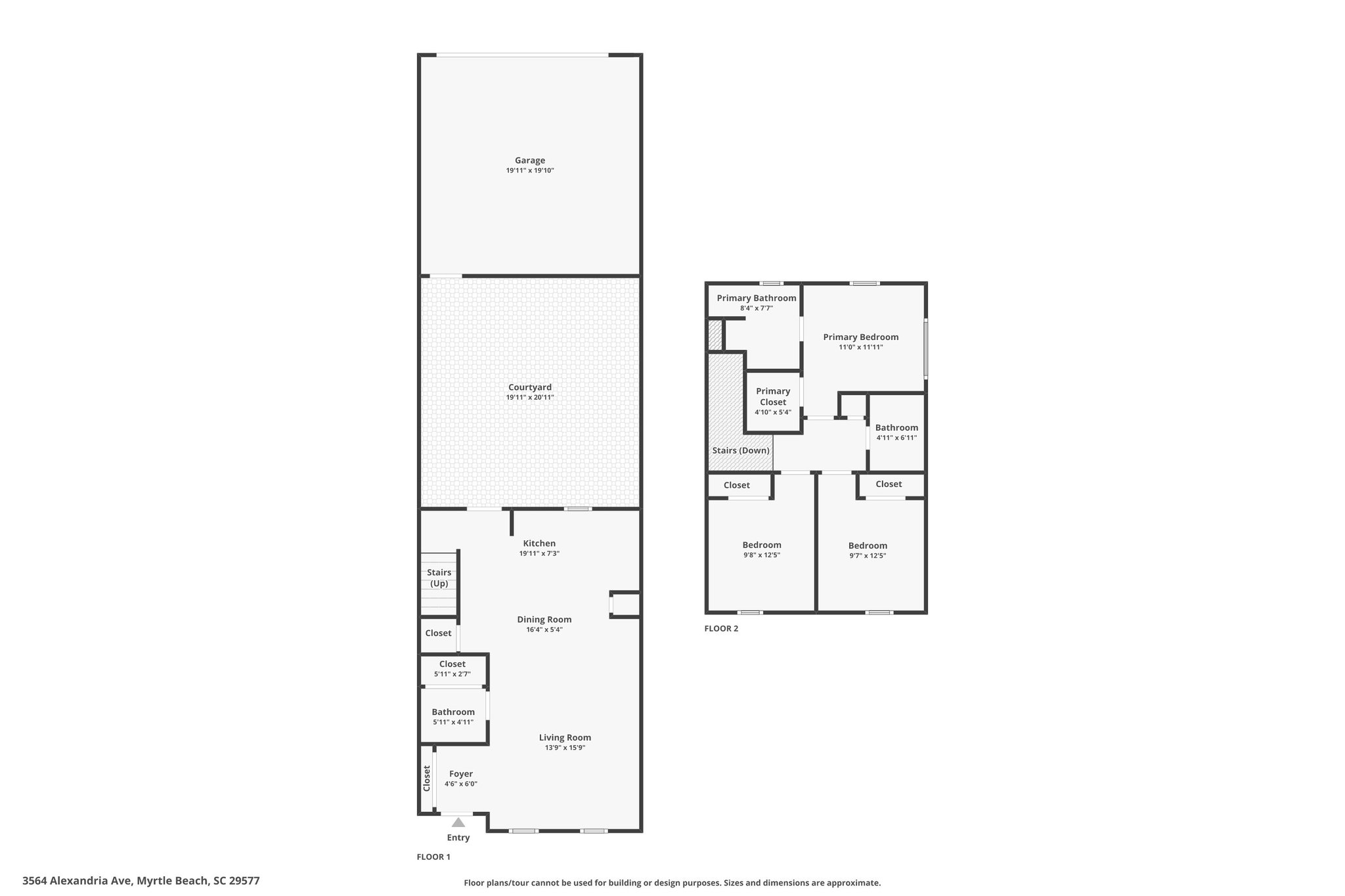
Floor Plans
Slideshow
Photo Grid
Hide
Previous
Next
3D Tour